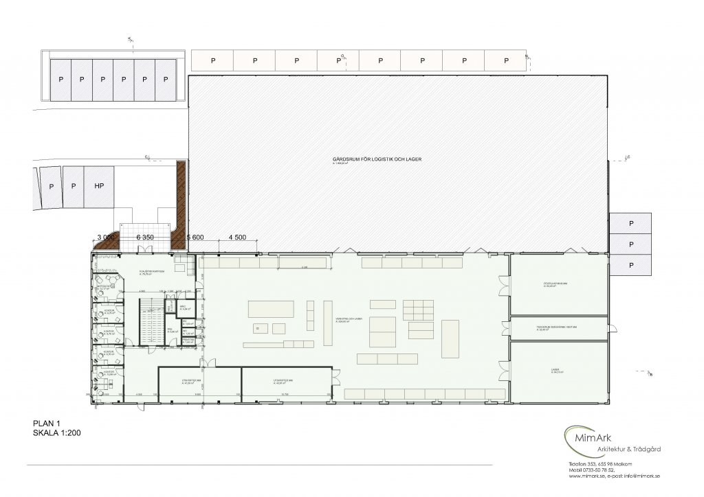
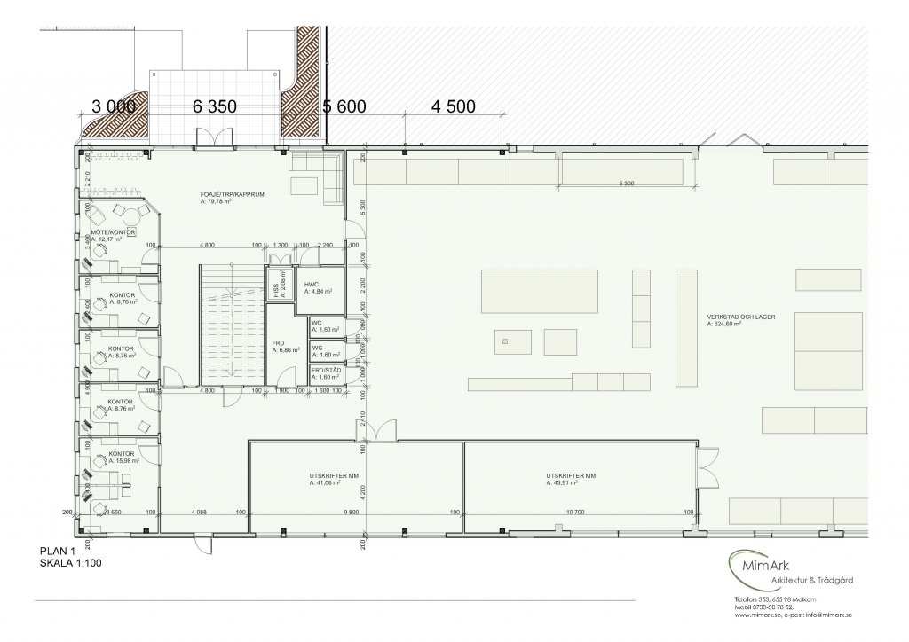
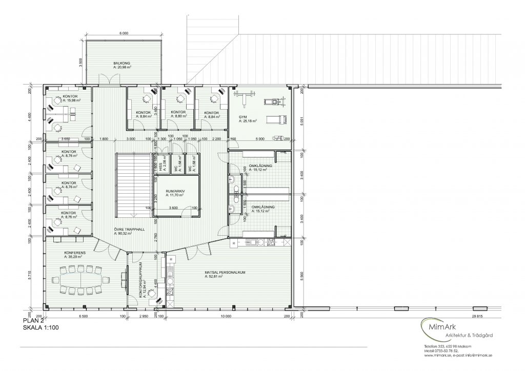
Kundens önskemål och vision står alltid i centrum
Utifrån kundens behov kan vi vara samtalspartner och ta fram tidiga skisser eller följa med och ta ansvar från första idé till färdig byggnad eller trädgård. Vi åtar oss ett flertal olika typer av uppdrag inom både arkitektur, trädgård och stads- och samhällsplanering. Nedan ser ni ett urval av de projekt vi har varit delaktiga i.

Lada blir kurslokal och vandrarhem
Omdaning av befintlig äldre lada till övernattning samt liten samlingssal/kurslokal. Beställarna vill gärna ha en Zen-inspirerad interiör. Formspråket blandar lite av japansk enkelhet och svensk lantlig tradition. Något senare i processen tillkom också en extra utvändig trappa.
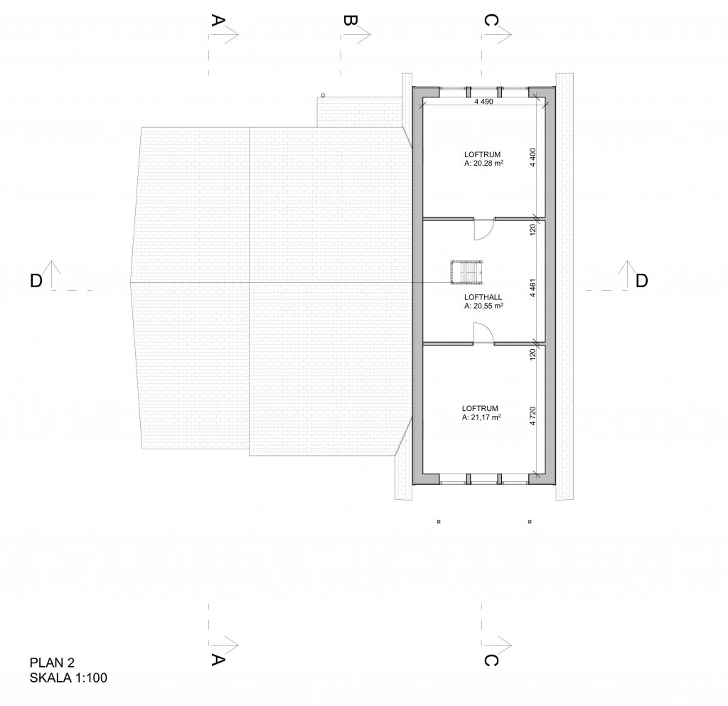
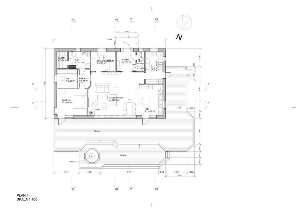
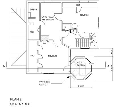
Förslag för utveckling av privatbostad
En privatbostad och tidigare missionshus nära Torsby behöver utvecklas till större bostad med arbetsplats samt separat uthyrningslägenhet.
Ett par förslag tas fram som blir inspirationsmaterial för omdaningen. Delvis ändrade förutsättningar med behov av större kontorslokaler för egna företaget gör att det slutliga resultatet utvecklas och justeras under byggprocessen.
Utveckling av utemiljön vid demensboende
Utemiljön vid boendet är svårtillgänglig och eftersatt men personal vid boendet vill kunna använda gårdsrummet mer för de boende. I samverkan med personalen tas ett förslag fram för en sinnesträdgård som ger kognitivt stöd för de boende men som också ger plats för olika aktiviter, samvaro och vila för själen.
Förslag för utveckling av altan och trädgård med naturvärden
En fristående villa behövde utveckling av oskyddad altan i söder. En ny pergola ger insynsskydd och solskydd och upphöjda bäddar med planteringar mot gatan ger också skydd och avskildhet.
Tomten är en kuperad naturtomt med berg i dagen. Här ges förslag för utveckling av helheten, där karaktären av kuperad naturtomt bevaras och förstärks med inslag av örter och blommor i skrevor och stenpartier. En mer låglänt del utformas för odling.
Visionsidéer för utveckling av kursgård
Långsiktig vision för utveckling av närområdet kring Ängsbacka kursgård i Värmland. Utarbetat ca år 1998-2000. Visionsdokumenten har fungerat som inspirationsmaterial och diskussionsunderlag. Fokus på hållbarhet i flera dimensioner; ekologisk odling, kretsloppsanpassade flöden, förnybar energi, byggandsvård mm.
Idé- och visionsdokument för allaktivitetshus i skola
Den gamla Graningeskolan i Molkom har stått tom i flera år. Föreningar och lokala organisationer vill skapa en mötesplats, ett kulturhus och ett allaktivitetshus i den vackra gamla skolan. Ett första visionsdokument tas fram som underlag för samtal med kommunen och tänkbara brukare. Ny grönskande utemiljö istället för asfalterad gård lyfts fram som visuell tankeväckare.













































































































































































